What We Do
New construction custom homes built on your land or ours across Virginia's Piedmont region.
Custom Home Building
With over 40 years of experience, we build new construction custom homes across Virginia's Piedmont region. We believe one size does not fit all — so unlike most builders who limit personalization to finishes, we let you modify every aspect of your home. Choose from our Cottage, Manor, or Estate Series, customize any plan, or design from scratch.

What's Included
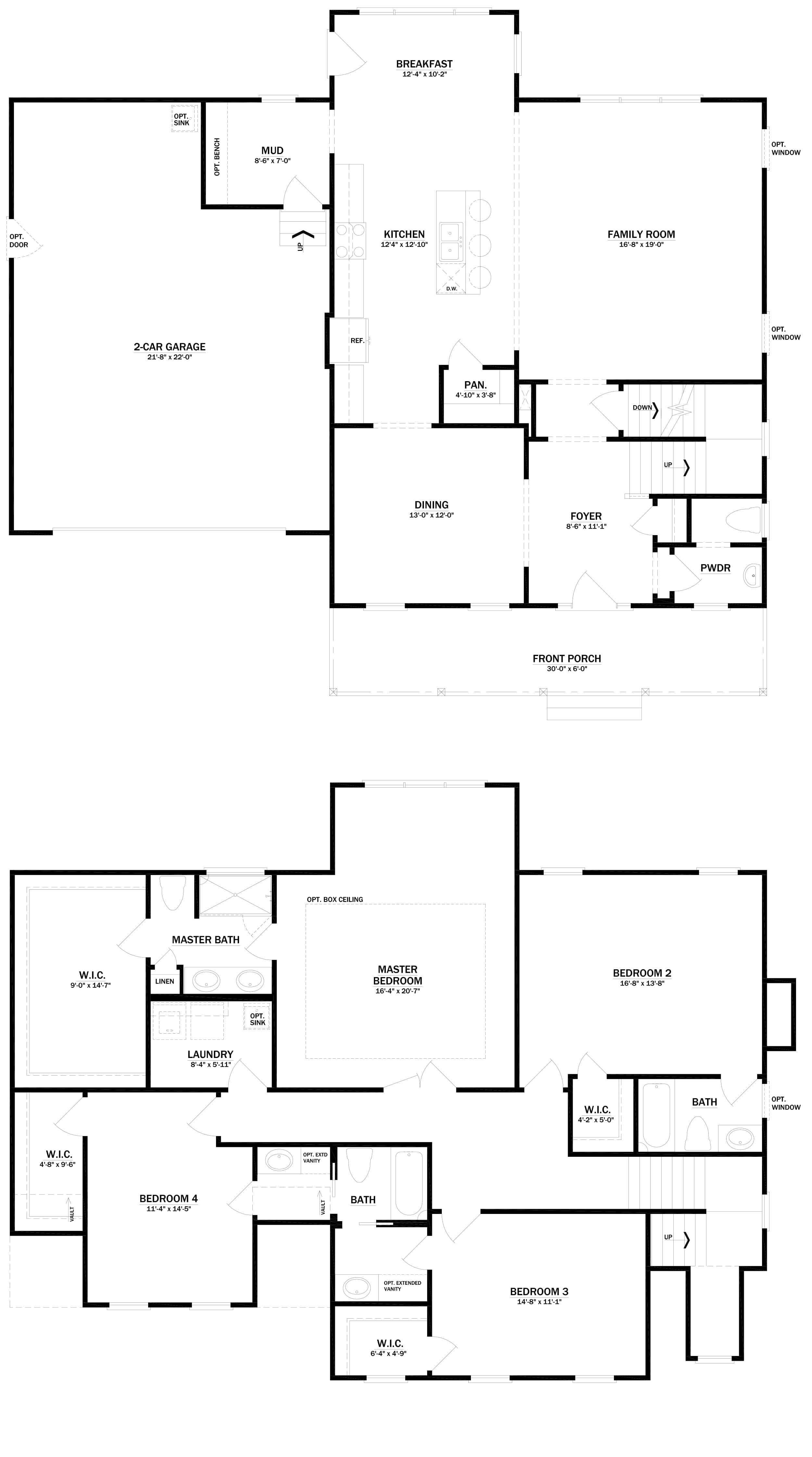
- 17+ floor plans from 1,380 to 3,474 sq ft
- Cottage, Manor, and Estate series options
- 3 to 4 bedrooms with 2-car garages
- Customizable layouts and finishes
- Quality cabinetry and appliances standard
- Premium fixtures and flooring throughout
Build on Your Land
Have your own lot? Whether you're looking for a rural setting with a beautiful view or a town setting with neighbors and sidewalks, we build where you want to be. From large acreage tracts to suburban lots, we handle site evaluation, soil testing, well and septic coordination, driveway construction, and all the preparation needed across Culpeper, Fauquier, Orange, Madison, and Prince William counties.

What's Included
- Build anywhere in our five-county service area
- Site evaluation and soil testing
- Well and septic system coordination
- Driveway and access road construction
- Grading and site preparation
- All permitting and inspections handled
Land Search Assistance
Don't have land yet? We can help. We work with local real estate agents across the Piedmont to help you find buildable lots that match your budget, location preferences, and the type of home you want to build. We also evaluate lots for buildability before you buy — checking soil conditions, utility access, and any potential site challenges.

What's Included
- Connections to local land agents
- Lot feasibility evaluation before purchase
- Soil and percolation assessment
- Utility access verification
- Zoning and setback review
- Estimated site prep cost analysis
Design & Planning
Your home starts with the right plan. Browse our library of 17+ floor plans across three series, or work with us to modify any design to fit your lifestyle. We walk you through material selections, layout options, and finish levels so your home is exactly what you envisioned. Our planning process includes detailed estimates so you know the full cost before breaking ground.

What's Included
- Floor plan selection and customization
- Material and finish selection guidance
- Detailed cost estimates before construction
- Architectural drawings and engineering
- Interior layout consultation
- Exterior elevation options
Energy-Efficient Construction
Every home we build meets high energy-efficiency standards. Our construction includes Home Energy Rating Certification, ensuring your home performs at a level that keeps utility bills low and comfort high year-round. We use proven materials and systems — not gimmicks — to deliver homes that are genuinely efficient in Virginia's climate.

What's Included
- Home Energy Rating Certified
- R-38 blown cellulose ceiling insulation
- R-13 blown cellulose wall insulation
- Dual-zone industry-leading heat pump systems
- Insulated and sealed ductwork
- Low-E, Argon-filled windows throughout
Turn-Key Home Delivery
From the first shovel to your move-in day, we manage the entire construction process. You get a single point of contact, a clear timeline, and regular updates as your home takes shape. We handle all permits, inspections, subcontractor coordination, and quality checks so you can focus on the exciting parts — choosing finishes and watching your home come to life.

What's Included
- Single point of contact throughout
- Complete permit and inspection management
- Subcontractor coordination and oversight
- Regular progress updates and photos
- Final walkthrough and punch list
- Clean, move-in ready delivery
Ready to Build Your Dream Home?
Contact Culpeper Custom Homes today. We'll walk your property, discuss your vision, and provide a detailed estimate.
